中古住宅 北野

1,980万円

岐阜県本巣市北野

東海道本線「岐阜」駅バス34分「小西郷」停歩8分

価格
1,980万円
間取り
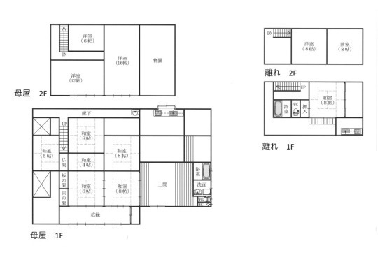
9LDK
土地面積
906.73㎡
所在地
岐阜県本巣市北野
交通

東海道本線岐阜」駅 バス34分 「小西郷」 停歩8分

建物面積
271.06㎡
築年月
1924年1月(築101年)

セールスポイント

大正13年築の風情のある古民家です♪おしゃれにリノベーションしてみませんか。
洗面、風呂、トイレ一部リフォーム歴有り

担当者のコメント

後藤 洸佑

お問い合わせお待ちしています♪

基本情報

販売戸数
-
総戸数
-
間取り / 詳細
9LDK
向き
-
建物面積(坪数)
271.06㎡(81.99坪)
土地面積(坪数)
906.73㎡(274.28坪)
建ぺい率 /
容積率
60%/200%
築年月
1924年1月(築101年)
駐車場 /
月額料金
有(7台) 0円
土地権利
所有権
土地
(敷金 / 保証金)
- / -
建物構造
木造 / 2階建
傾斜地部分面積
-
路地状敷地
-
私道負担面積
-
セットバック
無 記載なし
高圧線下面積
-
施工会社
-
用途地域
-
地目 / 地勢
宅地 / -
接道状況
一方(南 公道 4.0m 間口 28.0m)
国土法届出要否
不要
都市計画
非線引区域
総区画数 /
販売区画数
-/-
現況
居住中
その他
法令上の制限
-
取引態様
一般媒介
引渡し
相談
取引条件の
有効期限
2025年11月10日

設備条件

設備条件
  • プロパンガス / 井戸水道 / 公共下水
設備(その他)
    -

その他

物件番号
72195477
管理コード
1-33851
建築確認番号
-
情報更新日
2025年10月27日
次回更新予定日
2025年11月10日
備考
●田園居住地区 ●埋蔵文化財包蔵地 ●離れ有り:S2年築 木造2階建て(85.28㎡) ●蔵有り:S11年築 木造2階建て(57.85㎡)●一部リフォーム歴有り(洗面、風呂、トイレ)

周辺施設

  • 本巣市立席田小学校の画像

    小学校

    本巣市立席田小学校

    1280m(16分)

支払いシミュレーション

月々の支払額
9.6
購入希望物件価格
万円
頭金
万円
金利
%
返済額(ボーナス1回分)
万円
返済期間

※ボーナスは自動で年2回分で計算されます。

近隣の物件

  1. 中古住宅 下真桑

    本巣市下真桑

    4LDK (112.58㎡)

    850万円

中古住宅 北野

中古住宅 北野

1,980万円

-

9LDK(271.06㎡)

お気軽にお問い合わせください

無料お問い合わせ

鵜飼不動産株式会社

0120-49-5582

9:00~12:00 13:00~18:00

(休:水曜日)