アーク岐阜

450万円

岐阜県岐阜市粟野西1丁目

東海道本線「岐阜」駅バス39分「粟野口」停歩7分

価格
450万円
専有面積
56.54㎡
所在階 / 総戸数
2階/39戸
所在地
岐阜県岐阜市粟野西1丁目
交通

東海道本線岐阜」駅 バス39分 「粟野口」 停歩7分

利回り
想定13.80%
築年月
1991年8月(築34年)

セールスポイント

現在賃貸中のオーナーチェンジ物件です!表面利回り:約13.8%

担当者のコメント

堀 博文

現在賃貸中のオーナーチェンジ物件です! 表面利回り:約13.8%

基本情報

価格
450万円
利回り
想定13.80%
管理費
6,300円
修繕積立金
4,630円
修繕積立基金
-
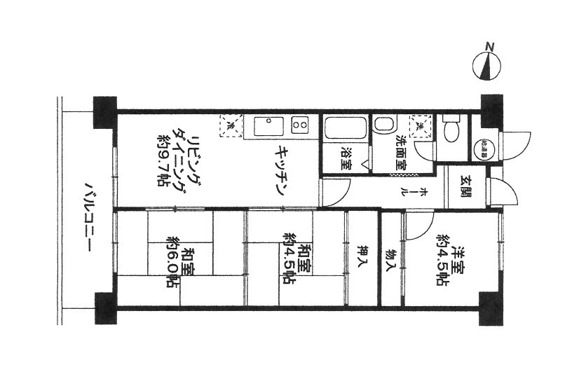
間取り / 詳細
3LDK
向き
西
専有面積
56.54㎡
その他面積
-
-
-
土地権利
所有権
国土法届出要否
不要
接道状況
角地(北 公道 4.9m)(西 6.0m)
用途地域
第二種中高層住居専用
地勢
-
都市計画
市街化区域
建物構造
鉄筋コンクリート
管理方式 /
管理人
管理会社に全部委託 / 巡回
所在階 / 階建て
2階 / 8階建
築年月
1991年8月(築34年)
取引態様
一般媒介
現況
賃貸中
引渡し
相談
管理会社 /
管理組合有無
- / -
取引条件の
有効期限
2026年02月22日

設備条件

設備条件
  • 都市ガス / 公営水道 / 公共下水
設備(その他)
    -

その他

物件番号
84015493
管理コード
-
情報更新日
2026年02月08日
次回更新予定日
2026年02月22日
取扱会社
  • 鵜飼不動産株式会社
  • 岐阜県岐阜市福光東2丁目8-5 
  • TEL:0120-49-5582
  • 国土交通大臣 (5) 第7117号
    岐阜県知事(般-28)第100055号
備考
◎収益物件
◎令和6年3月現在家賃収入:624000円/年(賃料:52000円/月:駐車場・共益費込)
◎表面利回り:約13.8%
◎リフォーム歴あり(R2年12月:インターフォン交換、R3年2月:洋室クロス張替え、R3年4月:電気温水器の水栓バルブ交換)
◎猫を飼っているため修繕用に預かり金が92000円あります。(返却不要)

周辺施設

  • 岐阜市立岩野田小学校の画像

    小学校

    岐阜市立岩野田小学校

    185m(3分)

  • 岐阜市立岩野田中学校の画像

    中学校

    岐阜市立岩野田中学校

    1193m(15分)

支払いシミュレーション

月々の支払額
9.6
購入希望物件価格
万円
頭金
万円
金利
%
返済額(ボーナス1回分)
万円
返済期間

※ボーナスは自動で年2回分で計算されます。

想定賃料・利回り・PER

PER(収益力)

※実際と異なる場合があります。

想定賃料(1ヵ月)
万円
利回り
%

アーク岐阜

アーク岐阜

450万円

6,300円

3LDK(56.54㎡)

お気軽にお問い合わせください

無料お問い合わせ

鵜飼不動産株式会社

0120-49-5582

9:00~12:00 13:00~18:00

(休:水曜日)